AQUDOCMP001
Aquarius Doc M Pack including Comfort Height Close Coupled Toilet, Basin and Grab Rails
Couldn't load pickup availability
Shipping & Returns
Shipping & Returns
UK Delivery from £6.95 - Free Shipping on orders over £500
Estimated 2-5 working days unless stated in stock.
In a hurry ? Call 01524 841087 or use Live Chat for more accurate lead times.
Full Delivery Information .
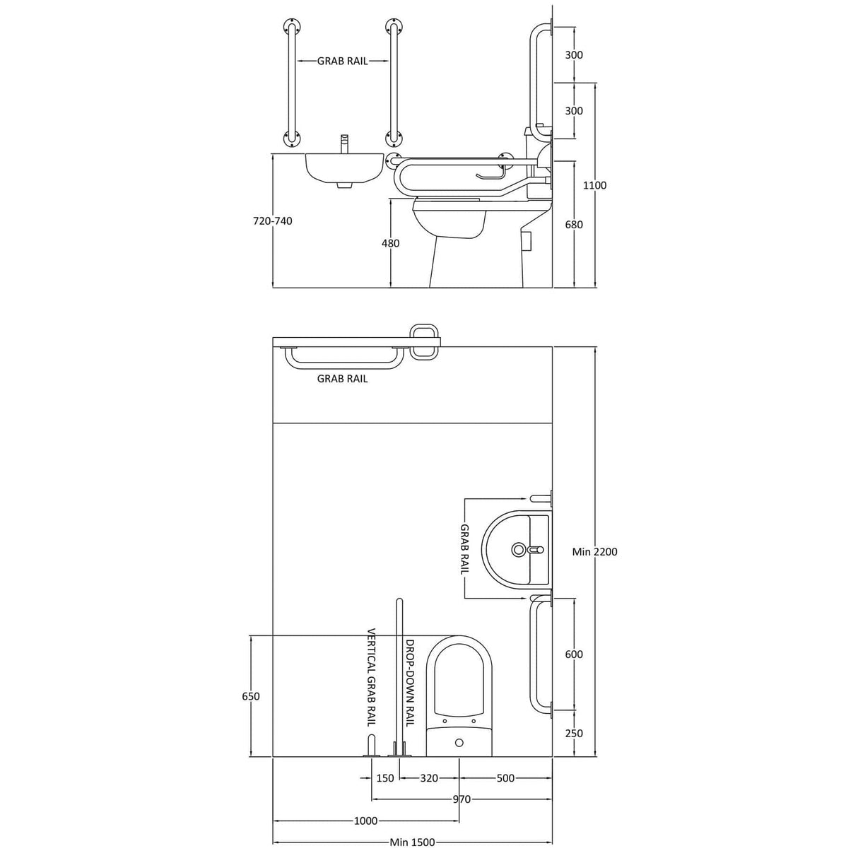
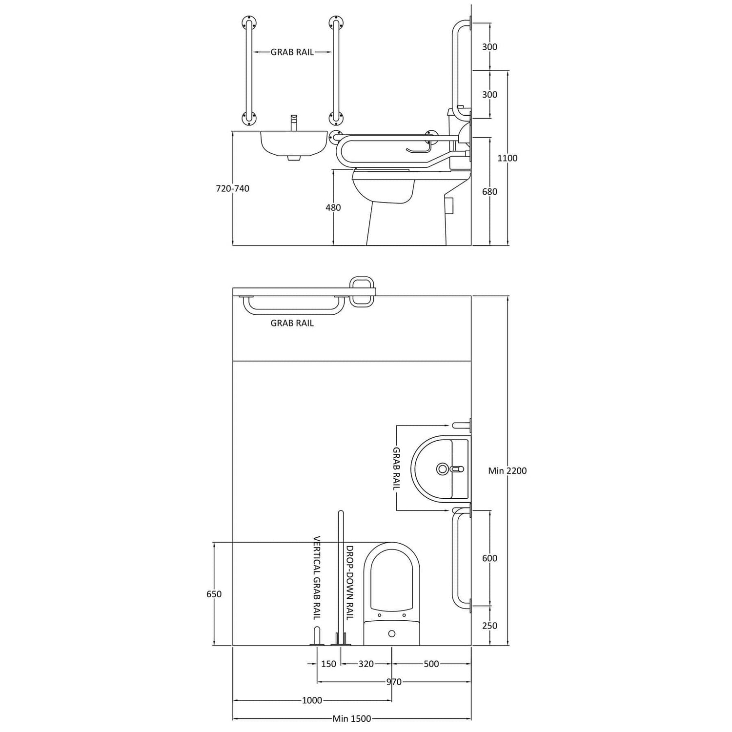
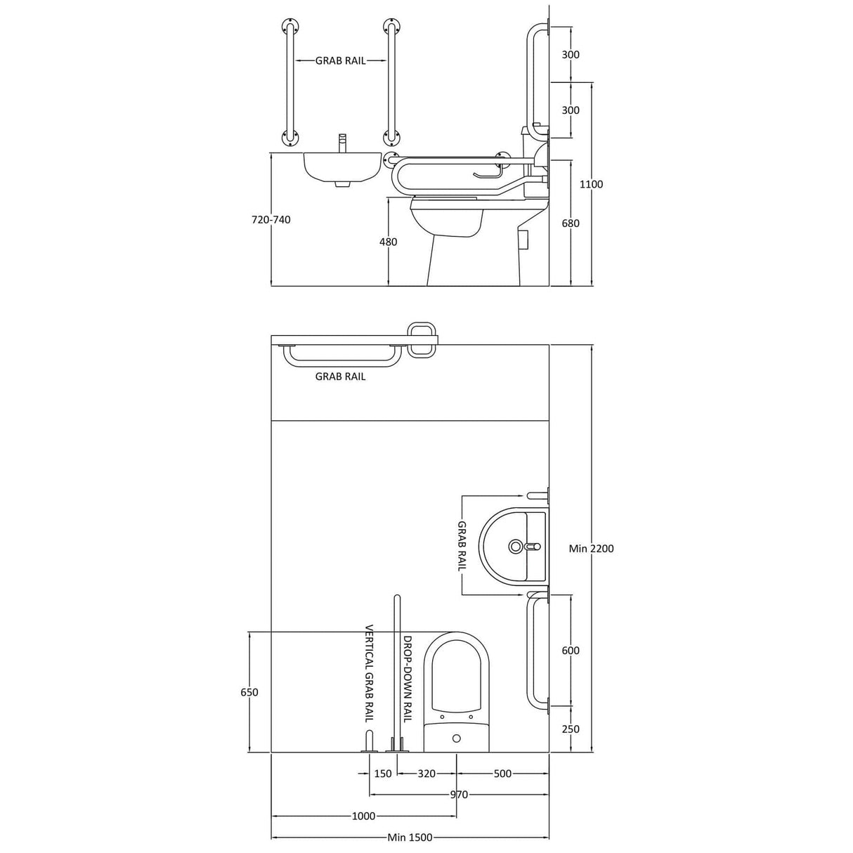
The Aquarius Bathrooms Doc M Assisted Living Toilet & Basin Pack is designed with a singular focus: to restore independence and provide a safer, more comfortable bathroom experience. Aquarius Bathrooms understands that for those with limited mobility, the right environment can make all the difference. By working closely with specialist manufacturers, we have curated this all-in-one solution to meet the rigorous standards for assisted living and public disability bathrooms, ensuring lasting support is accessible to everyone.
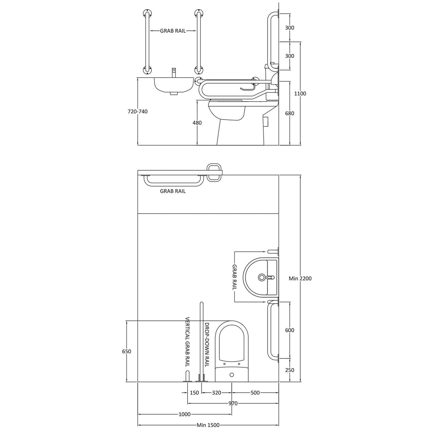
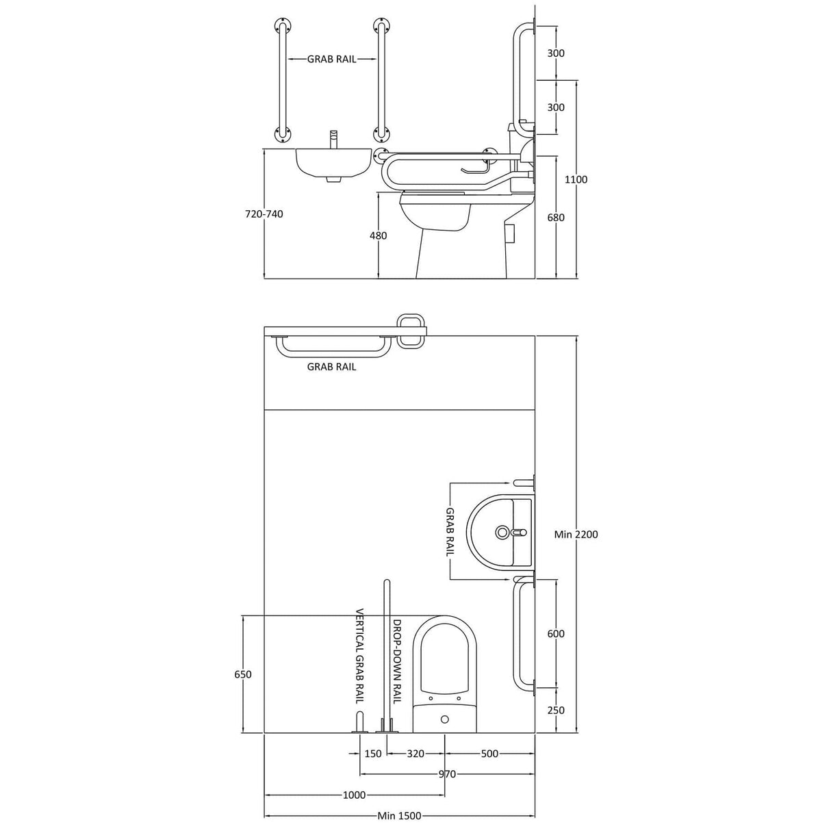
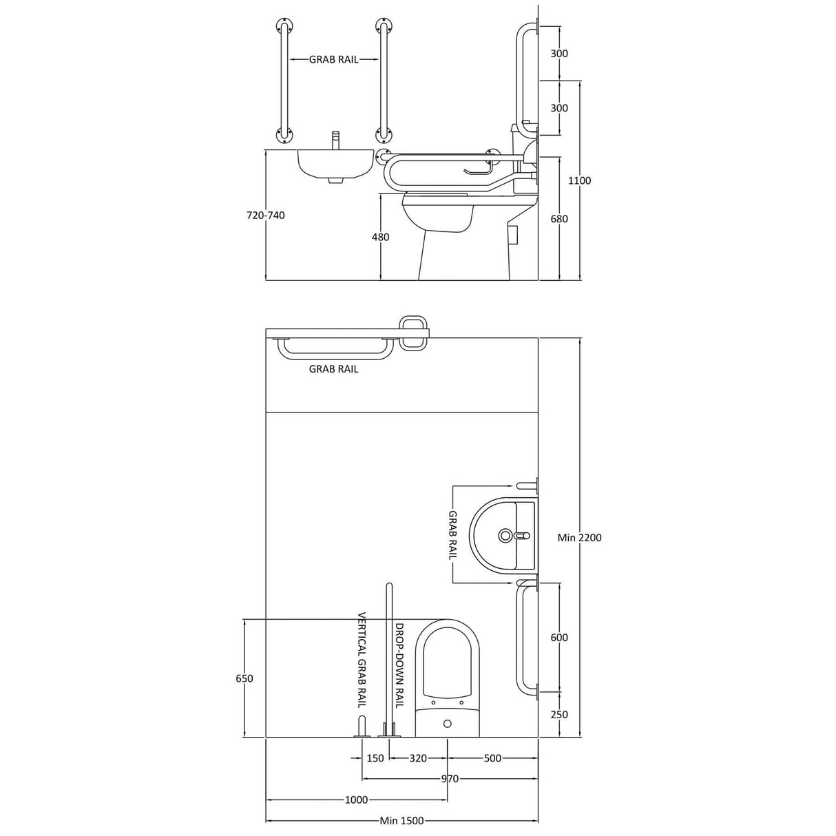
This comprehensive pack focuses on practical, life enhancing features rather than unnecessary complexity. At its heart is a comfort height toilet (480mm), which sits approximately 80mm higher than a standard pan to reduce the strain on knees and joints when sitting down or standing up. Every element, from the sturdy grab rails to the mixer tap, has been selected to provide confidence and peace of mind for the user and their carers alike.
To suit different needs and visibility requirements, the rails are available in two finishes: Classic White for a clean, coordinated look, or High Visibility Blue, which provides a sharp colour contrast to assist those with visual impairments.
Key Features
- Comfort Height Pan: The elevated seating position makes getting on and off the toilet significantly easier, promoting autonomy and physical comfort.
- Supportive Rail System: Includes five fixed grab rails and a sturdy drop down rail to provide reliable points of contact throughout the room.
- Contrast Options: Choose between White or Blue rails to ensure the safety features are easily identifiable for the user.
- Single Lever Tap: The included basin mixer is designed for effortless use, ideal for those with restricted hand movement or grip strength.
- Standard Rim Design: A familiar, reliable toilet profile that is easy to maintain and built for frequent use.
- Dual Flush Efficiency: The cistern features a simple dual-button flush operation, allowing for water saving flushes.
What's in the Box?
- 1 x Comfort Height Close Coupled Pan (Standard Rim)
- 1 x Close Coupled Cistern (with dual flush internal fittings)
- 1 x Toilet Seat (Standard close)
- 1 x Compact Wall Hung Basin
- 1 x Lever Basin Mixer Tap
- 5 x 600mm Support Grab Rails Available in White or Blue – 5th Grab Rail to be fitted behind bathroom door
- 1 x Hinged Drop Down Support Rail (White or Blue)
Please note: This pack is designed to comply with Doc M regulations for accessible bathrooms. We recommend installation by a qualified professional to ensure all rails are securely anchored for maximum safety.
Bottle Traps and Wastes sold separately.
About Aquarius Bathrooms
Aquarius Bathrooms is dedicated to offering high quality products with value in mind. We believe that safety and accessibility should never be a luxury, but a standard that every home or public space can afford. By sourcing reliable, compliant components, Aquarius ensures that your bathroom remains a supportive and functional space for years to come.







